Продається квартира Рельєфна, 8, Запоріжжя, Запорізька, Дніпровський (№ 213-295-252)
Ціна: 33 000 $
Рельєфна, 8, Запоріжжя, Запорізька, Дніпровський
Характеристики
| Ціна: | 33 000 $ |
|---|---|
| № об'єкта: | 213-295-252 |
| Кімнат: | 1 |
| Поверх: | 6 / 17 |
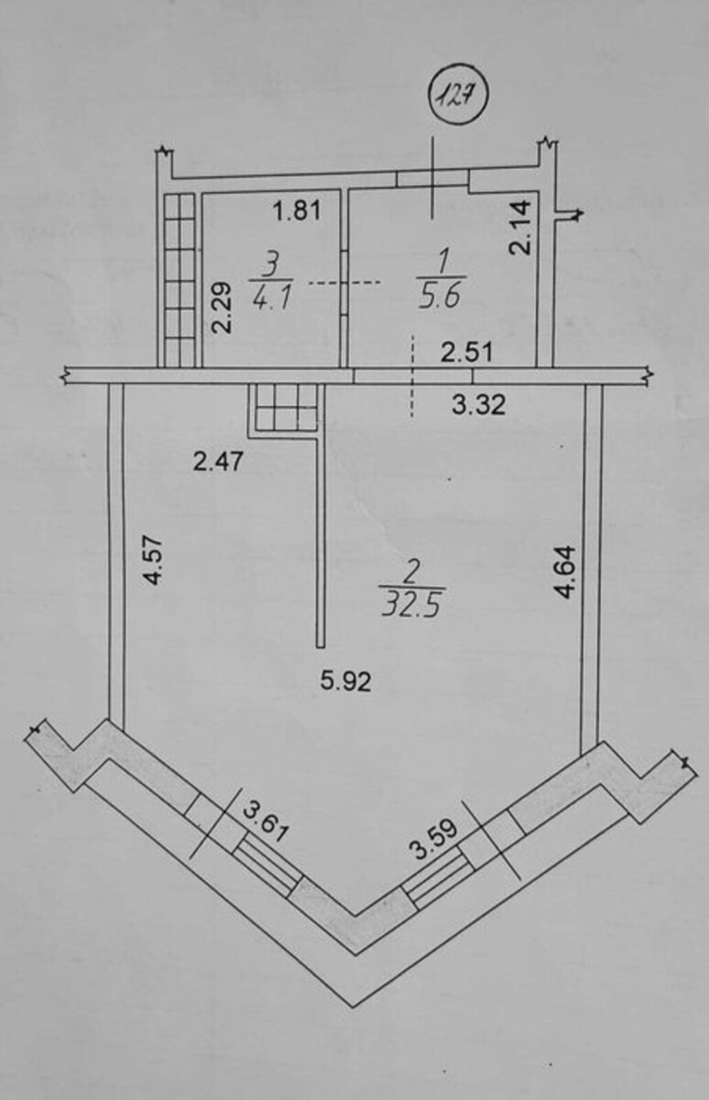
| Площа: | 44 / - / 10 м2 |
Опис
Кв-ра 1 к- (44кв.м)Рельефная 8. НОВОСТРОЙ.Разумный торг уместен. Предлагается к продаже 1 комн. квартира-студия в новом доме по ул. Рельефной 8 (“ЖК Александровский посад),в трех остановках от плотины. Дом сдан в эксплуатацию в 2008 году Общая площадь- 44 кв.м на 6-м этаже. !!!МОЖНО ЛЕГКО ПЕРЕДЕЛАТЬ В 2-Х КОМНАТНУЮ, РАЗРЕШЕНИЕ НА ПЕРЕПЛАНИРОВКУ НЕ ТРЕБУЕТСЯ!!! Большим приемуществом являются полы с подогревом . Также в квартире установлены индивидуальные счетчики на воду и отоплени. Последний дает право регулировать тепло и оплачивать минимально.(от 400 грн в месяц) Закрытый двор, ухоженная территория, чистый подъезд, охрана, парковка, 2-детские площадки, на территории есть: спортивный , детский , медицинский и ветеринарный центры, а так же магазин и кафе. Рядом находятся : рынок, детсад, школа, больница, остановки общественного транспорта. Обслуживание дома “ОСМД”. Коммунальные услуги - 300 грн + свет и вода по счетчикам. Звонить на : вайбер, ватцап, телеграм,инстаграм в любое время по телефону +33652966651 Светлана..Вид обєкта: Вторинний ринок;Тип будинку: Житловий фонд 2001-2010-і;Назва ЖК: “ЖК Александровский Посад”;Тип стін: Монолітний;Клас житла: Комфорт;Планування: Студія;Cанвузол: Суміжний;Опалення: Централізоване;Ремонт: Житловий стан;Побутова техніка: Холодильник, Плита;Мультимедіа: Wi-Fi;Комфорт: Відеоспостереження, Балкон, лоджія, Ванна, Консерж, Ліфт, Підігрів підлоги, Меблі на кухні, Паркувальне місце, Охорона території, Грузовий ліфт;Комунікації: Асфальтована дорога, Центральна каналізація, Електрика, Вивіз відходів, Центральний водопровід;Інфраструктура (до 500 метрів): Відділення банку, банкомат, Лікарня, поліклініка, Дитячий садок, Ринок, Парк, зелена зона, Дитячий майданчик, Відділення пошти, Ресторан, кафе, Школа, Магазин, кіоск, Зупинка транспорту;Ландшафт (до 1 км.): Парк, Річка;























